找回密码
 注册
搜索

47平老房改造装修ing.......

zolsgang 2013-7-12 23:59 显示全部楼层 阅读模式 来自: 中国辽宁大连
本帖最后由 zolsgang 于 2013-7-13 00:07 编辑

                                                                                    老房子原貌                                            
              房子到了一个月,里面破旧不堪。没办法穷人一个。有个窝就不容易了。只能期望把这破旧的老房装出有些温馨家庭的氛围了。
开始准备装修,找了几张装修公司,偷学了下他们的一些小设计。再根据自己想法,自己做了乱七八糟的设计。不知道最后出来的效果如何。毕竟不是很懂。只能一边装修,一边增加想法吧。
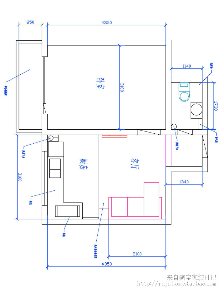
先上老房的一些照片。下面是个户型图。




回复

使用道具 举报

大神点评10

 楼主| zolsgang 2013-7-12 23:59 显示全部楼层 来自: 中国辽宁大连
本帖最后由 zolsgang 于 2013-7-13 00:09 编辑

                                                                                    装修之旅第一步----开砸&选门!                                            
     和老公轮流来写装修日记。今天算是动工后的第一篇,用老爸的话说,我们的小房子开始大手术啦!
     由于平时工作比较忙,偶尔能去看一眼,所以大部分的事情都是由老公来忙活,我的任务就是选我喜欢的东西,比如瓷砖·壁纸什么的,然后他买回来负责帮我把想法实现。大夏天的,确实很辛苦,在这里,先感谢老公的付出!我们一定要把我们的小窝,弄得美美滴~~
    言归正传。先说说找的装修的师傅。前面老公也说到了,我们找了好多的装修公司去看房子,还有朋友等等介绍的工头,一共下来8.9家是有了,都是他跟着的,我一个没看到。只有最后这个师傅,是我们两个一起看的,也觉得最靠谱的。这个师傅原来是给我的一个同事家做装修的,同事介绍时就和我说,他也不是工头,就是自己做的,基本上什么都自己来,唯独瓦工的活他不会,他找别人做,其他的水电什么的,他都没问题。第一次接触时,因为他是南方人,说话快,声音还很大,所以我和老公都觉得和这个人以后沟通可能会有问题。但是看房子时,他说的最细。因为我们这个属于小屁活,可能对于很多装修的来说都觉得没什么意思,所以其他的人来看房子的时候,都很快,看一眼,报个价就走了。只有这个师傅,在看的时候就很仔细,很多地方提前就帮我们想到了,报的价也是我们最能接受的,所以虽然他人比较啰嗦,但是我们还是愉快的决定就他了。毕竟活做得好,耳朵受点罪又有什么的······(接下来,我们都简称他刘师傅)
    其实开砸,是从昨天开始的。可是由于昨天我俩都忙的要命,所以也没有去看,今天难得我俩都有时间,又和刘师傅约好了今天给他第一笔钱,所以我俩就一起去现场了。还没进门,就听见电钻杠杠响的声音了。平日里,我是最讨厌这个声音,纯噪音,但是今天这个听起来,还挺顺耳的···刚一开门,还没进屋,我俩就呛出来了。都看不清人,全是灰尘。再进去时,才看到好多地方已经都砸没了,刘师傅特意把在平日专门在家看孩子的刘嫂 给叫过来帮忙,两个人一看到我俩,就是一顿的诉苦啊。因为房子特别老,之前的装修是92年装的,有20多年了,所以有些地方确实是脏的不像样子,厨房的好多地方,都长毛了再有就是老房子建的比较好,墙特结实,刘师傅说这些砸下来的整块的砖头,都比现在的砖好 ,以后能用上···
    今天办的第二件大事就是重新换了新水阀。其实这不是个大事,但是所有的事,一扯上共产党,就麻烦了。因为之前的水阀时间太长,刘师傅不敢砸了,怕漏水。我们这房子比较特殊,各家的水必须由自来水公司来负责开关,所以昨天我们联系自来水公司给停下水,打电话时说漏水了,给楼下淹了,结果昨天联系了一天,20多个电话,也没人来管···(此处省略骂人的100来字)。今天一早老公就想好战略,先询问,再咆哮。终于是回复说下午一点半准时去给我们停。一点半我俩去了,打电话,说堵车堵道上出不来了,换个师傅来给我们弄···换个师傅两点多来了,两盒烟,水阀搞定···
   行吧,今天就先写这些了,老公说我写的太多,你们会看睡着的。我这也是第一次装修自己的房子,一个精神亢奋,再有写的细些,你们也能多了解一些不是。在这里感谢各位观众看我的废话连篇了,上图片。祝各位晚安!
                                                                                                           -----to be continued









回复 支持 反对

使用道具 举报

 楼主| zolsgang 2013-7-12 23:59 显示全部楼层 来自: 中国辽宁大连
占位,留后面用。。
回复 支持 反对

使用道具 举报

 楼主| zolsgang 2013-7-12 23:59 显示全部楼层 来自: 中国辽宁大连
占位,留后面用。。
回复 支持 反对

使用道具 举报

 楼主| zolsgang 2013-7-12 23:59 显示全部楼层 来自: 中国辽宁大连
占位,留后面用。。
回复 支持 反对

使用道具 举报

 楼主| zolsgang 2013-7-13 00:07 显示全部楼层 来自: 中国辽宁大连
占位,留后面用。。
回复 支持 反对

使用道具 举报

冠军门业 2013-7-13 12:14 显示全部楼层 来自: 中国辽宁大连
我家也是老房子改造···现在正在装修·····只有一个想法,下次买就买新房子,,,,,
回复 支持 反对

使用道具 举报

 楼主| zolsgang 2013-7-14 00:38 显示全部楼层 来自: 中国辽宁大连
                                                                                    [流水账]开砸&选门(2)------选门记                                           
                                                                                                                                                                                                                 其实还是昨天的事情,但是由于昨晚开始写就已经挺晚了,又写了那么多,在老公的勒令下暂停了。今天继续昨天那些事···
    上回书说到,水阀搞定后,刘师傅又催我俩赶紧去选防盗门,只有确定了门的尺寸,他才能知道门边的墙要怎么砸。马不停蹄,我俩赶紧往金三角去。到金三角的时候,已经是快下午4点了,有很多铺子都关门了。我俩挺纳闷,打听了一下,说是4点半就全下班了,这下我俩傻眼了···本来还想先看看瓷砖有没有我俩想要的,也来不及了,直接就奔着防盗门那边去了。其实金三角的防盗门真不多,一家一家的,总共加一起估计一双手都能数过来。我俩的房子是全南向的,所以要选带通风窗的,价格呢,预算的是1000元以内。上去先大概看了下,第一个问价的是万嘉的,上半部分的通风窗,带防盗片的,900元。在门的方面呢,我老公还是比较在行的,他以前就从事过这方面的工作。所以当时卖家说的这个门多少个厚,什么甲级的,什么工艺的,什么专利的,基本忽悠不住我俩。卖家说的天花乱坠,十多分钟,我一句没听懂,我老公两句话解释,我就明白了(在这里给大家一些建议,我老头原来是在一个很有名的门窗公司做设计,具体的公司名字我就不说了,大连的壹品星海和星海大观,还有就是一些大连比较高档的别墅区用的门都是他们公司的。老公和我说,就是他们公司的门,用的也都是万嘉的锁,可以说在这个行业里,万嘉的锁芯不能绝对的说是最好,但一定算得上很好)。 由于进来到是第一家,我俩就决定再走走看,实在没别的再说。听了老公刚才的话,我也决定就买用万嘉锁芯的了。又看了一家的门,这家应该是这里边最大的了, 叫阳宇门业,打眼一看就不错。看了个符合我俩想法的,各方面都挺好,一问价1300,我俩当时就想看这架势讲到1000是够呛了。刚要走,谁知接待我俩的 人去接了个电话,又过来一个接待我俩的,我就顺嘴再一问价,1100最低  ( 哦 ,妈妈咪啊···)  我就说我俩再去商量一下,出去后我俩就决定在这两个门里(900&1100)选一个了,制定的战略是900的要是800能拿下就直接定了,要是不给,就过来讲1100的到1000···没有如果,必须成一个。回去900的那家,磨了半天,让了50,我俩就又杀回了1100。因为我个人还是偏向于这个门,所以我觉得这次讲价,可以算是我人生最厚脸皮的一次了,连老公都对我刮目相看,方法就是不给我就不走,磨叽了有半个小时,别人家都下班了,前面900的也叫我回去说800能卖了,我还是不走,最后老板娘让我弄没辙了,答应1000卖了···(我骄傲!!)
     郁闷的事情是,今天早上接到阳宇家老板娘的电话,说实在是不挣钱,让我自己掏发泡胶钱20元,(这里再省略骂人的100来字)···由于昨天他们着急下班,说不用我俩交定金,直接电话联系就行。我俩也实在是没有时间再去看遍门,所以就这样了吧···
     这里最后说几句,我一直以为防盗门这个东西是可以多次利用的,比如我房子动迁了,我就给拿到新房子用,经过这次才知道,防盗门这个东西,也基本就是一次性的,因为新楼和老楼的尺寸是不一样的,而且上了的门框再扒下来基本就走形了,所以要是老房子的亲们,就别考虑买太好的门了···
     上门的图(我的成就啊),明天上午要去齐家团购淘淘货······
       祝各位晚安!
                                               ----------------------to be continued



                                                                                               
回复 支持 反对

使用道具 举报

 楼主| zolsgang 2013-7-24 10:10 显示全部楼层 来自: 中国辽宁大连
本帖最后由 zolsgang 于 2013-7-24 10:12 编辑

        
装修第二步---郁闷的一周

    今天算是一个回归了。7月14日下午3点的飞机至上海,要出差一周,7月14日上午还一大早上的被老公拉起来去了齐家的团购会,本来想中午回来的时候稍写点,然后再有老公一天来写点,结果14日时间不够,之后老公又懒得够可以,所以一直就等到了今天。在这里,还是要感谢浏览了这篇日记的人们,有你们真好!!

   一周的时间,发生了太多太多的事情,用一个词来形容,就是郁闷,非常,及其的郁闷!让我一件一件的为大家道来···

   首先,还是先说齐家的团购会。我和老公是第一次参加这种类型的团购会,感觉就是--刘姥姥进了大观园。因为时间比较紧迫,在去的钱一天晚上,我和老公就先看了一下有什么便宜实用的东西,结果第二天我俩去的时候,人山人海啊,所有看好的东西,都卖没了。其他的东西,也都不是很便宜。都有点给我逛烦了,又听说11点开始,有个齐家的品牌砍价会,说是有些东西会很便宜,我俩就决定再等等看。10:30人就坐满了。我当时还想呢,照这个速度,应该能看到一件砍完价的商品的价格。结果都到11:30了,主持人还在台子上自导自演的说着呢,最后还来了句,砍价会在下午5点左右结束。我的天啊,我哪有那个时间去等她啊,还没等开始,我俩就先撤了。不过话说回来,我们也不是一无所获的,当天有个迈格家具在那里做展,感觉东西,服务什么的都还是不错的,交100元定金,会有设计师上门量尺设计,帮你选择家具,最后要是不满意,就可以退还定金,反正也不损失什么,所以我俩当时就交定金了。

   再剩下的事情,就是后来老公学给我听的了,听的我特来气,还好我不在,要不我非得现场表演个挠人不可!

   和卖门的厂家商定的是周二(7.16)安排人来换门。换门那天,安装工人给我老公打电话,说马上要到了,我老公说他也马上,让他们等他一下。也就10多分钟,等我老公到的时候,没把他气半死。由于我家门的一边是直角墙(具体概念我也不是很明白),和正常的门的安装不太一样。这个东西我俩不懂,在之前买卖的前后,卖家也没有问过我们,结果安装的师傅上去以后,也没等我老公,也没和他联系,直接就把旧门拆了,把新门按照不能正常使用的方式给按上了,本来这门能用个6,7年的没有问题,让他们这么一按,连一年都用不上。这下老公怒了,直接没给钱,给他们老板打的电话,让重新按。由于之前他们砸的问题,再加上直角墙,这个门直到下午4·5点钟才解决,中间我家就一直处于无大门的状态。这个事情最后能解决,真的要感谢刘师傅,自己开车回家给我们找木板,找材料,下午又是钉又是砌(这些本来都不是他的活),和新过来的安装师傅一起帮我们把门装的结结实实。看来装修选对人,真的是个很重要的事情。老公说在这种时候,要是装修的师傅再给他出难题,他杀人的心都能有了!

    今天就分享这些,明天继续。各位亲!!


回复 支持 反对

使用道具 举报

xiaoqiao1045 2013-7-24 15:26 显示全部楼层 来自: 中国辽宁大连
zolsgang 发表于 2013-7-12 23:59
装修之旅第一步-- ...

你好,我有也想装修,能给我一个你家刘师傅的联系方式吗?
回复 支持 反对

使用道具 举报

您需要登录后才可以回帖 登录 | 注册

  • 1 关注
  • 4 粉丝
  • 2 帖子
 

天健社区APP